トップ
アクセス&ロケーション
デザイン&ランドプラン
プラン
ZEH-M
物件概要
現地・ギャラリー案内図
資料請求
来場予約
TEL
MAP
来場予約
資料請求
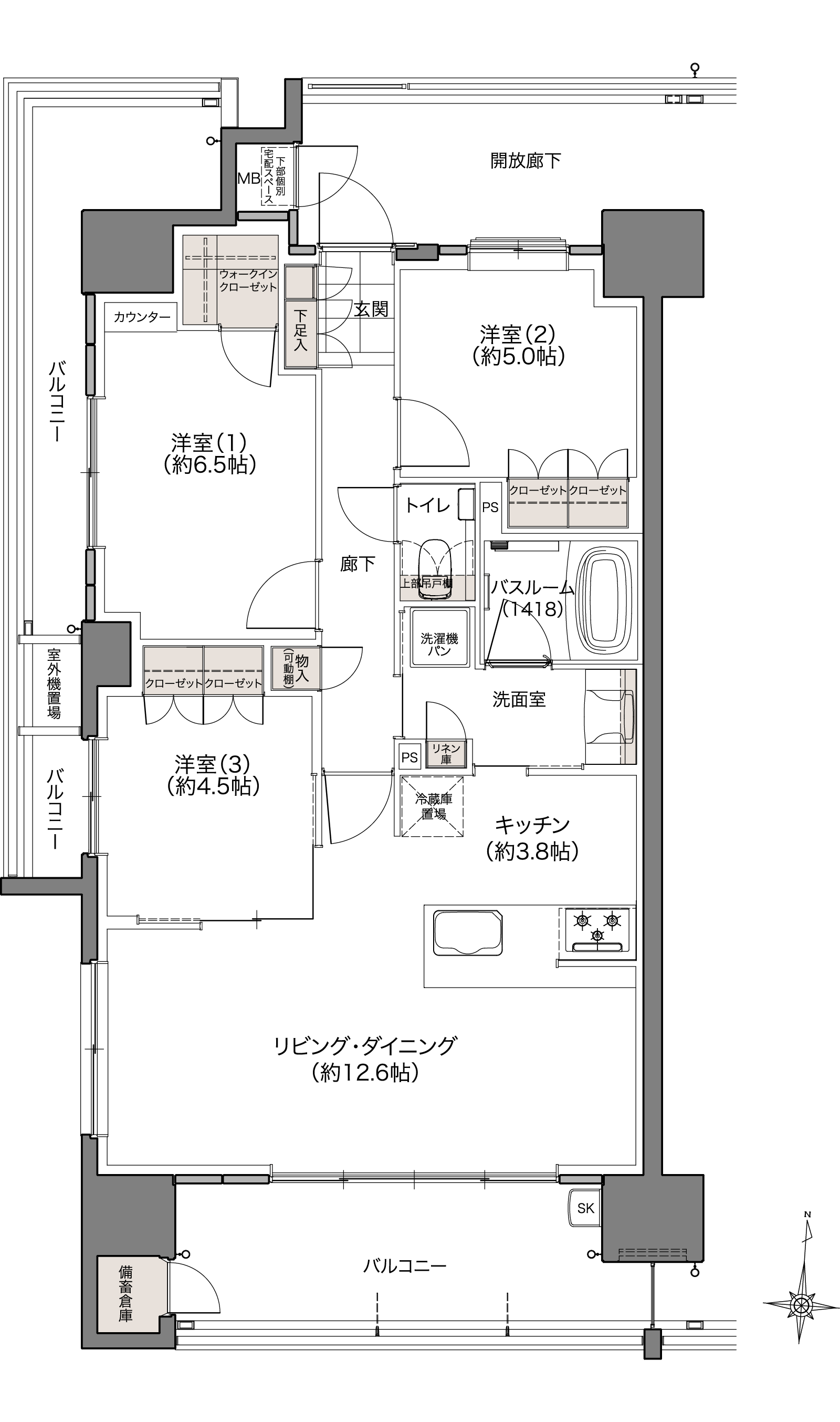
TYPE
A
3LDK
+WIC
※2階~10階は2LDK+S+WIC
■住居専有面積
72.89
㎡[22.04坪]
■バルコニー面積
20.77
㎡[6.28坪]
■MB面積
0.69
㎡[0.20坪]
■室外機置場面積
0.94
㎡[0.28坪]
■備蓄倉庫面積
1.69
㎡[0.51坪]
■合計面積
96.98㎡
㎡[29.33坪]
WIC:ウォークインクローゼット
※掲載の間取図は、計画段階の図面を基に描き起こしたもので、施工上の都合により変更が生じる場合があります。
一覧に戻る